Modern parhuslägenhet med sjöutsikt och soligt västerläge i Möckelö Strand
Erikavägen 4 F i JomalaBeskrivning
-
Beskrivning:
VÄLKOMMEN TILL ERIKAVÄGEN 4 F
Välkommen till denna stilrena och välplanerade parhuslägenhet om ca 113,5 m², uppförd 2015 och belägen i attraktiva Möckelö Strand i Jomala. Bostaden erbjuder ett fint läge med sjöutsikt samt balkong och terrass i soligt västerläge.
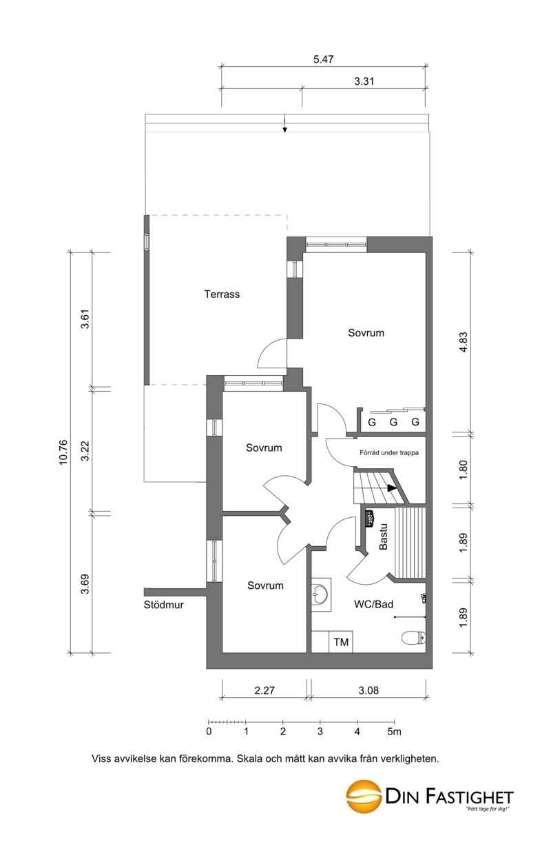
Lägenheten är fördelad på två plan med fyra rum och kök, där de sociala ytorna finns på entréplanet och de privata rummen på nedre plan. Genomgående vitmattlackad ekparkett och ljusa ytskikt skapar ett modernt och enhetligt intryck.
Entréplanet rymmer hall, kök, vardagsrum, en flexibel biblioteksdel samt badrum. Köket och vardags-rummet har en öppen planlösning som ger en luftig och social känsla, med stora fönsterpartier som släpper in rikligt med ljus och bjuder på vacker utsikt. Från vardagsrummet nås den rymliga balkongen i västerläge.
På nedre plan finns tre sovrum, ett större badrum med bastu. Det största sovrummet har utgång till en generös terrass med eftermiddags och kvällssol samt privat gård med gräsmatta.
Lågt vederlag i kombination med uppvärmning via bergvärme bidrar till låga driftskostnader.
Bostaden är i mycket gott skick och har underhållits omsorgsfullt.
Genomtänkta tillval såsom bl.a. köksö, spotlights och extra isolerat förråd bidrar till en högre standard och extra komfort.
RUMSBESKRIVNING
Välkomnande entré med plats för avhängning, praktiskt klinkergolv samt garderober bakom spegelskjutdörrar. Intill hallen finns ett rymligt badrum med wc, dusch, handfat samt spegel. Väggarna är kaklade i vitt och golvet belagt med grått klinker.
Vidare in öppnar bostaden upp sig mot kök och vardagsrum i öppen planlösning. Köket är stilrent inrett med vita skåpsluckor från Marbodal och grå bänkskivor samt en inbjudande köksö. Rostfria vitvaror från Siemens; side-by-side kyl och frys, induktionshäll, ugn, mikro, fläkt och diskmaskin. Från matplatsen har man utsikt mot Småholma badstrand.
Vardagsrummet är ljust och rymligt med stora fönster i västerläge som ger ett fint ljusinsläpp hela dagen. Härifrån nås balkongen om ca 18,7 m2 med härlig eftermiddagssol och fin utsikt mot vattnet.
Intill köket finns en trevlig biblioteksdel som passar utmärkt som arbetsplats, läshörna eller lekyta.
En stilren trappa med fondvägg och integrerad belysning leder ner till nedre plan. Här finns tre sovrum, varav det största har direkt utgång till terrass som delvis är under tak och har utökats med ca 25 m² under 2023. I rummet finns även garderober bakom skjutdörrar. De två övriga sovrummen är något mindre och lämpar sig väl som barnrum, gästrum eller kontor.
På nedre plan finns även ett rymligt badrum med bastu, dusch, wc, handfat, spegelskåp samt tvättmaskin (Electrolux) och arbetsbänk med förvaring. Väggarna är kaklade i vitt med stilig fondvägg i grå skiffer vid dusch och wc. Golvet är belagt med grått klinker.
Extra förvaringsutrymme finns under trappan.
I kök och badrum finns dimbara spotlights.
En mindre terrass finns på husets södra sida, i anslutning till bostadens entré, även denna med sjöutsikt.
Till bostaden hör även en carport med motorvärmaruttag samt ett isolerat förråd.
BOSTADSAKTIEBOLAGET
Bostads Ab Möckelö Strand 2 A-H i Jomala omfattar åtta lägenheter fördelade på fyra parhusbyggnader vid Erikavägen 4 i Möckelö Strand, Jomala. Husen uppfördes 2015–2016 som sutterränghus i två plan med stomme i sten och trä.
Till varje lägenhet hör carport med förråd. Gården är asfalterad och fasaderna består av stående träpanel med sadeltak i plåt.
Uppvärmning sker via bergvärme till vattenburen golvvärme i båda planen. Ventilationen är mekanisk frånluft med tilluft via spaltventiler. Fastigheten är ansluten till fiber och IPTV via Ålcom, och bolaget äger tomten.
Underhåll har skett löpande. 2021 åtgärdades samtliga vindar (efterkontrollerade 2023, utan anmärkningar), och 2025 genomfördes ventilationsrengöring samt förbättringar av ventilationen. Samma år utfördes även energideklaration med energiklass D.
Planerade åtgärder inkluderar eventuellt montage av snörasskydd vid entréer och förråd.
Fastighetsskötsel sköts delvis av de boende (gräsklippning) samt extern servicefirma (plogning). Den ekonomiska förvaltningen handhas av Mäklarhuset Åland Ab.
LÄGE
Här bor du i ett modernt och omtyckt bostadsområde i Möckelö Strand, endast ca 5 km från centrala Mariehamn. Området präglas av nyare bebyggelse och är särskilt populärt bland barnfamiljer.
På bekvämt avstånd finns badstrand, lekplats, bollplan med konstgräs och pulkabacke. Närmaste daghem ligger ca 450 meter bort och matbutik nås inom ca 2,7 km.
Området erbjuder fina promenadstråk och närhet till natur och hav, samtidigt som stadens service, restauranger och utbud finns inom kort avstånd.
Ett attraktivt boende för dig som söker ett modernt hem i lugn miljö med närhet till både vatten och stad.
KOSTNADER
Köparen står för kostnaderna av köpebrev (265 €), överlåtelseskatt (1,5 % av köpesumman) samt registreringskostnad i samband med registrering av fysiskt aktiebrev i bostadsdatasystemet (92 €).
Visa hela beskrivningen
Ytterliggare detaljer
- Antal rum: 4 rum & kök
- Byggår: 2015
- Boyta: 113.5 m²
- Våning: Två våningar
- Parkering: Carport med motorvärmare
- Typ: Lägenhet
- Egen tomt: Ja
- Bastu: Ja
- Inflyttning: 20 juli 2026
Bostadsbolaget
- Vederlag: 227 €/månad (2,00 €/m2/månad)
- Bostadsbolag: Bostads Ab Möckelöstrand II A-H i Jomala
- Antal lägeneheter: 8 st
- Låneandel: Skuldfritt bolag
- Värmesystem: Bergvärme till vattenburen golvvärme
- Ventilation: Mekanisk frånluftsventilation
- Fiber: Ja
- Grund: Suterräng
- Fasad: Stående träpanel
- Tak: Sadeltak i falsad plåt
Plats
Video
- Video:
Planskiss
- Planskiss: